Trong bối cảnh quỹ đất ngày càng hạn chế, đặc biệt ở khu vực thành phố, nhu cầu xây dựng những ngôi nhà nhỏ gọn nhưng đầy đủ tiện nghi ngày càng tăng. Trong đó, thiết kế nhà 50m2 đang trở thành lựa chọn tối ưu cho nhiều gia đình trẻ.
Với diện tích vừa phải, gia chủ có thể linh hoạt xây dựng 1 tầng, 2 tầng hoặc 3 tầng tùy nhu cầu. Nếu biết cách sắp xếp và lựa chọn phong cách thiết kế phù hợp, một căn nhà 50m2 hoàn toàn có thể vừa hiện đại, tiện nghi, lại tiết kiệm chi phí.
Trong bài viết này, Trường Sinh Group sẽ mang đến cho bạn:
- Bản vẽ mặt bằng tham khảo.
- Chi phí xây dựng mới nhất 2025.
- Kinh nghiệm tối ưu không gian.
- Gợi ý đơn vị thi công uy tín.
I. Vì sao thiết kế nhà 50m2 được ưa chuộng?
Không phải ngẫu nhiên mà nhà 50m2 ngày càng phổ biến ở Việt Nam. Một số lý do chính gồm:
- Chi phí hợp lý: Xây dựng nhà 50m2 tiết kiệm hơn nhiều so với các diện tích lớn, phù hợp với các gia đình trẻ hoặc vợ chồng mới cưới.
- Linh hoạt về công năng: Có thể thiết kế 1 tầng, 2 tầng hoặc 3 tầng, đáp ứng nhu cầu từ 2 đến 6 thành viên
- Nhiều phong cách để lựa chọn: Từ hiện đại, tối giản, phong cách Nhật, Hàn đến tân cổ điển.
Chính vì thế, nhà 50m2 là lựa chọn vừa túi tiền, vừa hợp xu hướng, lại đáp ứng được nhiều nhu cầu khác nhau.

II. Các mẫu thiết kế nhà 50m2 đẹp
1. Nhà 50m2 1 tầng
- Phù hợp gia đình ít người (2–3 thành viên).
- Phong cách thường thấy: nhà cấp 4, mái thái, mái bằng.
Ưu điểm: chi phí thấp, thời gian thi công nhanh.
Nhược điểm: hạn chế công năng, ít không gian mở rộng.

2. Nhà 50m2 2 tầng
Công năng bố trí:
+ Tầng 1: phòng khách, bếp, WC.
+ Tầng 2: 2 phòng ngủ, phòng thờ, WC.
- Phù hợp gia đình 3–4 thành viên.- Thiết kế hiện đại, có thể kết hợp ban công trồng cây xanh.

3. Nhà 50m2 3 tầng
- Tối ưu diện tích, phù hợp gia đình đông người (4–6 thành viên).
- Công năng gợi ý:
+ Tầng 2: 2–3 phòng ngủ.
+ Tầng 3: phòng thờ + sân thượng.
Có thể kết hợp vừa ở vừa kinh doanh.

4. Nhà 50m2 có gác lửng
- Giải pháp tiết kiệm chi phí nhưng vẫn tăng diện tích sử dụng.
- Thích hợp cho đất có chiều cao xây dựng hạn chế.

5. Nhà 50m2 phong cách hiện đại – tối giản – Nhật Bản
- Nội thất thông minh, đa năng.
- Không gian mở, hạn chế vách ngăn cứng.
- Tông màu sáng, kết hợp nhiều cửa kính lấy sáng tự nhiên.

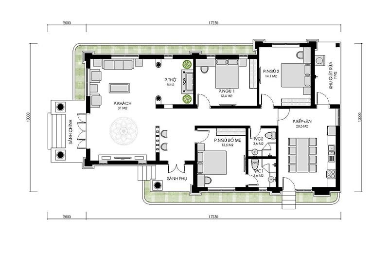
III. Bản vẽ mặt bằng nhà 50m2
1. Mặt bằng nhà 50m2 1 tầng

2. Mặt bằng nhà 50m2 2 tầng

3.Mặt bằng nhà 50m2 3 tầng

IV. Chi phí xây dựng nhà 50m2 mới nhất 2025
Chi phí sẽ phụ thuộc vào phong cách thiết kế, chất liệu và số tầng. Dưới đây là mức tham khảo:
|
Loại nhà |
Chi phí dự kiến (VNĐ) |
Thời gian thi công |
|---|---|---|
|
Nhà 50m2 1 tầng |
400 – 600 triệu |
2 – 3 tháng |
|
Nhà 50m2 2 tầng |
700 – 950 triệu |
3 – 4 tháng |
|
Nhà 50m2 3 tầng |
1.0 – 1.3 tỷ |
4 – 6 tháng |
|
Nhà 50m2 có gác lửng |
500 – 750 triệu |
2.5 – 3.5 tháng |
Các yếu tố ảnh hưởng chi phí:
- Vật liệu xây dựng (bình dân hay cao cấp).
- Phong cách thiết kế (hiện đại đơn giản hay tân cổ điển cầu kỳ).
- Chi phí nhân công theo khu vực.
V. Kinh nghiệm thiết kế nhà 50m2 tối ưu không gian
- Thiết kế không gian mở: kết nối phòng khách – bếp – ăn để tạo cảm giác rộng rãi.
- Nội thất thông minh: giường tầng, tủ âm tường, bàn gấp gọn.
- Tối ưu ánh sáng tự nhiên: sử dụng cửa kính, giếng trời, ban công.
- Chọn màu sắc phù hợp: tông sáng giúp không gian thoáng đãng.
- Xanh hóa không gian sống: chậu cây nhỏ, vườn treo, góc ban công xanh.
VI. Đơn vị thiết kế – thi công nhà 50m2 uy tín
Để có ngôi nhà ưng ý, việc chọn đơn vị thiết kế – thi công uy tín là vô cùng quan trọng. Tiêu chí cần quan tâm:
- Hợp đồng rõ ràng, minh bạch chi phí.
- Hồ sơ năng lực & công trình đã thực hiện.
- Đội ngũ kiến trúc sư sáng tạo, am hiểu phong thủy.

Trường Sinh Group là một trong những đơn vị chuyên thiết kế & xây dựng nhà ở dân dụng, đặc biệt với diện tích nhỏ 30–60m2. Chúng tôi cam kết:
- Tư vấn miễn phí, báo giá chi tiết.- Thi công đúng tiến độ, bảo hành công trình.
- Dịch vụ trọn gói từ thiết kế → xin phép xây dựng → thi công → hoàn thiện nội thất.
Thiết kế nhà 50m2 không chỉ là giải pháp phù hợp cho gia đình trẻ mà còn mang lại nhiều lợi ích về chi phí và công năng. Với phong cách thiết kế thông minh, bạn hoàn toàn có thể sở hữu một ngôi nhà nhỏ gọn nhưng hiện đại, tiện nghi và đầy đủ tiện ích.
Nếu bạn đang tìm kiếm mẫu nhà 50m2 đẹp, bản vẽ mặt bằng & báo giá chi tiết, hãy liên hệ ngay với Trường Sinh Group để được tư vấn miễn phí và nhận bản thiết kế tối ưu nhất cho không gian sống của mình.
DỊCH VỤ THIẾT KẾ
Thiết kế nhà ở
Xem thêmThiết kế biệt thự
Xem thêmThiết kế chung cư
Xem thêmThiết kế sửa chữa
Xem thêmThiết kế nội thất
Xem thêmThiết kế văn phòng, nhà hàng
Xem thêmXây nhà trọn gói
Xây nhà trọn gói Hà Nội
Xem thêmXây nhà trọn gói Thái Bình
Xem thêmXây nhà trọn gói Hải Phòng
Xem thêmXây nhà trọn gói Quảng Ninh
Xem thêmXây nhà trọn gói Hưng Yên
Xem thêmXây nhà trọn gói Bắc Ninh
Xem thêmSửa nhà trọn gói
Sửa nhà trọn gói Hà Nội
Xem thêmHoàn thiện biệt thự
Xem thêmHoàn thiện chung cư
Xem thêmCÔNG TRÌNH ĐÃ THIẾT KẾ VÀ THI CÔNG




























