- 1. Tổng Quan Về Thiết Kế Nhà 70m2
- 2. Các Mẫu Thiết Kế Nhà 70m2 Đẹp Theo Xu Hướng 2025
- 3. Bố Trí Công Năng Hợp Lý Cho Nhà 70m2
- 4. Chi Phí Thiết Kế Và Xây Dựng Nhà 70m2 Năm 2025
- 5. Mẫu Thiết Kế Nhà 70m2 Theo Công Năng Sử Dụng
- 6. Đơn Vị Thiết Kế Nhà 70m2 Uy Tín – Trường Sinh Group
- 7. Câu Hỏi Thường Gặp (FAQ)
Bạn đang sở hữu mảnh đất diện tích khoảng 70m² và muốn có một không gian sống hiện đại, tiện nghi nhưng vẫn tiết kiệm chi phí?
Trong bài viết này, Trường Sinh Group sẽ chia sẻ mẫu thiết kế nhà 70m2 đẹp nhất năm 2025, kèm bản vẽ mặt bằng, gợi ý bố trí công năng, và bảng chi phí chi tiết giúp bạn dễ dàng lựa chọn phương án phù hợp nhất.
1. Tổng Quan Về Thiết Kế Nhà 70m2
Với diện tích 70m², gia chủ có thể lựa chọn nhiều kiểu thiết kế khác nhau như nhà phố, nhà ống, nhà cấp 4 hoặc nhà 2–3 tầng.
Đây là diện tích lý tưởng để bố trí 2–3 phòng ngủ, phòng khách, bếp ăn và khu sinh hoạt chung một cách hợp lý.
Một số yếu tố quan trọng khi thiết kế nhà 70m2:
-
Tận dụng ánh sáng tự nhiên và thông gió tự nhiên.
-
Bố trí không gian mở, liên thông giữa phòng khách – bếp – phòng ăn.
-
Lựa chọn phong cách thiết kế phù hợp với ngân sách: hiện đại, tân cổ điển, mái thái...
-
Cân đối giữa thẩm mỹ – công năng – chi phí xây dựng.

2. Các Mẫu Thiết Kế Nhà 70m2 Đẹp Theo Xu Hướng 2025
2.1. Thiết kế nhà 70m2 1 tầng
-
Phù hợp với gia đình nhỏ 3–4 người, ưu điểm là thi công nhanh, chi phí thấp (~700–900 triệu đồng).
-
Không gian thường bố trí: phòng khách, bếp + ăn, 2 phòng ngủ, 1 phòng vệ sinh.
-
Phong cách hiện đại, mái thái hoặc mái bằng đều rất được ưa chuộng.

2.2. Thiết kế nhà 70m2 2 tầng
Là lựa chọn phổ biến nhất hiện nay, mang lại không gian sinh hoạt thoải mái cho gia đình 4–6 người.
-
Tầng 1: phòng khách, bếp ăn, 1 phòng ngủ, WC.
-
Tầng 2: 2 phòng ngủ, phòng thờ, ban công.
-
Chi phí xây dựng dao động 1,2 – 1,6 tỷ đồng, tùy vật liệu và phong cách.

2.3. Thiết kế nhà 70m2 3 tầng
Phù hợp với gia đình nhiều thế hệ hoặc có nhu cầu kinh doanh – cho thuê tầng trệt.
Phong cách hiện đại, mặt tiền 4–5m thiết kế kính cường lực, lam nhôm hoặc đá ốp.
Chi phí khoảng 1,8 – 2,3 tỷ đồng.

2.4. Thiết kế nhà 70m2 mái thái / hiện đại / tân cổ điển
-
Mái thái: sang trọng, chống nóng tốt, phù hợp nhà ở ngoại ô.
-
Hiện đại: tối giản, dùng gam màu sáng, vật liệu kính – thép – gỗ.
-
Tân cổ điển: phào chỉ tinh tế, hợp với gia chủ yêu sự bền vững và đẳng cấp.

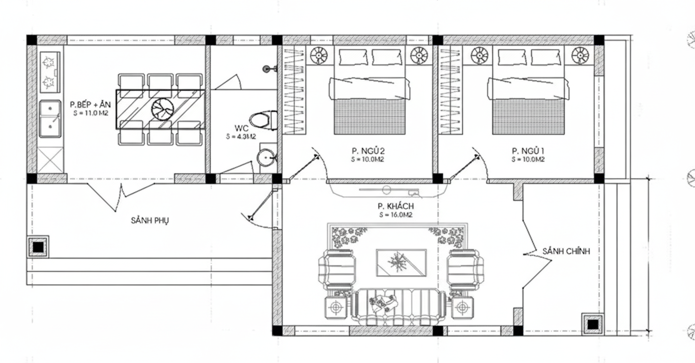
3. Bố Trí Công Năng Hợp Lý Cho Nhà 70m2
Diện tích 70m² không quá lớn, vì vậy việc bố trí công năng cần được tính toán khoa học để tối ưu không gian sử dụng.
Gợi ý bố trí phổ biến:
-
Phòng khách: 18–20m², đặt gần cửa chính, hướng ra mặt tiền.
-
Bếp + ăn: 15–18m², liên thông phòng khách để tạo cảm giác rộng.
-
Phòng ngủ: 2–3 phòng (10–12m²/phòng).
-
WC: 1–2 phòng tùy tầng.
-
Phòng thờ / sân phơi / ban công: đặt tầng trên cùng.
Mẹo nhỏ: Sử dụng vách kính, tủ âm tường và tông màu sáng sẽ giúp không gian trông rộng rãi hơn.

4. Chi Phí Thiết Kế Và Xây Dựng Nhà 70m2 Năm 2025
Mời quý vị và các bạn cùng tham khảo chi phí thiết kế và xây dựng nhà 70m2 trong năm 2025 nhé:
|
Hạng mục |
Đơn giá (VNĐ/m²) |
Tổng chi phí dự kiến |
|---|---|---|
|
Thiết kế kiến trúc |
150.000 – 250.000 |
~10 – 18 triệu |
|
Xây dựng phần thô |
3.500.000 – 4.000.000 |
~250 – 280 triệu/tầng |
|
Hoàn thiện trọn gói |
5.000.000 – 6.500.000 |
~350 – 450 triệu/tầng |
Lưu ý: Bảng giá trên chỉ là chi phí để quý vị tham khảo vì chi phí sẽ biến động phụ thuộc vào giá vật tư và khu vực quý khách muốn triển khai.
Tổng chi phí xây nhà 70m² 2 tầng trung bình khoảng 1,2 – 1,5 tỷ đồng, tùy vật liệu và thiết kế.
Mẹo tiết kiệm chi phí:
-
Thiết kế đơn giản, hạn chế chi tiết phào chỉ.
-
Chọn vật liệu địa phương, gạch block, cửa nhôm kính Việt Pháp.
-
Thuê đơn vị thiết kế & thi công trọn gói để được tối ưu giá.
Liên hệ Trường Sinh Group để nhận báo giá chi tiết và bản vẽ miễn phí khi thi công trọn gói.
5. Mẫu Thiết Kế Nhà 70m2 Theo Công Năng Sử Dụng
-
Nhà 70m2 2 phòng ngủ: phù hợp gia đình nhỏ, thiết kế thoáng, nhiều ánh sáng.

-
Nhà 70m2 có gara: dành cho nhà phố mặt tiền rộng, bố trí tầng trệt làm gara.

-
Nhà 70m2 kết hợp kinh doanh: tầng 1 mở cửa hàng, tầng 2–3 sinh hoạt.
-
Nhà 70m2 có sân vườn: bố trí tiểu cảnh, khu BBQ nhỏ phía sau.
6. Đơn Vị Thiết Kế Nhà 70m2 Uy Tín – Trường Sinh Group
Trường Sinh Group là đơn vị thiết kế nhà & thi công trọn gói với hơn 10 năm kinh nghiệm trong lĩnh vực xây dựng dân dụng.
Chúng tôi đã thực hiện hàng trăm dự án thiết kế nhà phố, biệt thự, nhà ống trên toàn quốc, đặc biệt trong phân khúc diện tích 60–100m².
Lợi thế khi chọn Trường Sinh Group:
-
Đội ngũ kiến trúc sư giàu kinh nghiệm, am hiểu phong thủy.
-
Thiết kế 3D chi tiết, thực tế, đúng nhu cầu & ngân sách.
-
Thiết kế miễn phí khi thi công trọn gói.
-
Bảo hành công trình 5 năm – bảo trì trọn đời.

Cam kết: “Đẹp hơn bản vẽ – Chuẩn tiến độ – Tiết kiệm chi phí”.
7. Câu Hỏi Thường Gặp (FAQ)
Thiết kế nhà 70m2 hết bao nhiêu tiền?
Tùy quy mô và vật liệu, chi phí thiết kế dao động 10–20 triệu, xây dựng hoàn thiện từ 1–1,5 tỷ đồng cho nhà 2 tầng.
Nên chọn phong cách nào cho nhà 70m2?
Phong cách hiện đại, mái bằng hoặc mái thái là lựa chọn tối ưu – vừa đẹp, vừa tiết kiệm chi phí.
Có nên thuê đơn vị thiết kế chuyên nghiệp không?
Có. Thiết kế chuyên nghiệp giúp tối ưu công năng, tránh lỗi bố trí, và giảm chi phí phát sinh khi thi công.
Với diện tích 70m², bạn hoàn toàn có thể sở hữu ngôi nhà hiện đại, tiện nghi và hợp phong thủy nếu có phương án thiết kế phù hợp.
Nếu bạn đang cần tư vấn thiết kế nhà 70m2 chi tiết, hãy liên hệ Trường Sinh Group – chúng tôi sẽ giúp bạn biến ý tưởng thành bản vẽ hoàn hảo.
Hotline: 0975.258.999
Website: kientructruongsinh.vn
Kiến trúc Trường Sinh – Kiến tạo không gian sống bền vững.
DỊCH VỤ THIẾT KẾ
Thiết kế nhà ở
Xem thêmThiết kế biệt thự
Xem thêmThiết kế chung cư
Xem thêmThiết kế sửa chữa
Xem thêmThiết kế nội thất
Xem thêmThiết kế văn phòng, nhà hàng
Xem thêmXây nhà trọn gói
Xây nhà trọn gói Hà Nội
Xem thêmXây nhà trọn gói Thái Bình
Xem thêmXây nhà trọn gói Hải Phòng
Xem thêmXây nhà trọn gói Quảng Ninh
Xem thêmXây nhà trọn gói Hưng Yên
Xem thêmXây nhà trọn gói Bắc Ninh
Xem thêmSửa nhà trọn gói
Sửa nhà trọn gói Hà Nội
Xem thêmHoàn thiện biệt thự
Xem thêmHoàn thiện chung cư
Xem thêmCÔNG TRÌNH ĐÃ THIẾT KẾ VÀ THI CÔNG




























